މި އަންނަ ދިރާސީ އާ އަހަރާ އެކު، ހުޅުމާލޭގައި އަލަށް ހުޅުވާ ޝަހީދު އަލީ ސްކޫލް ހުންނަ ބްލޮކުގެ ވަށައިގެން އޮންނަ މަގުތަކުން އެއްކޮޅަށް ވެހިކަލް ދުއްވޭ ގޮތަށް މިއަދު ބަދަލުކޮށްފި އެވެ.

އެޗްޑީސީން ނެރުނު ބަޔާނެއްގައި ބުނީ ޝަހީދު އަލީ ސްކޫލް ވަށައިގެން އޮންނަ މަގުތައް އެއްކޮޅަށް ދުއްވޭ ގޮތަށް ބަދަލުކޮށްފައިވާ ކަމަށެވެ.

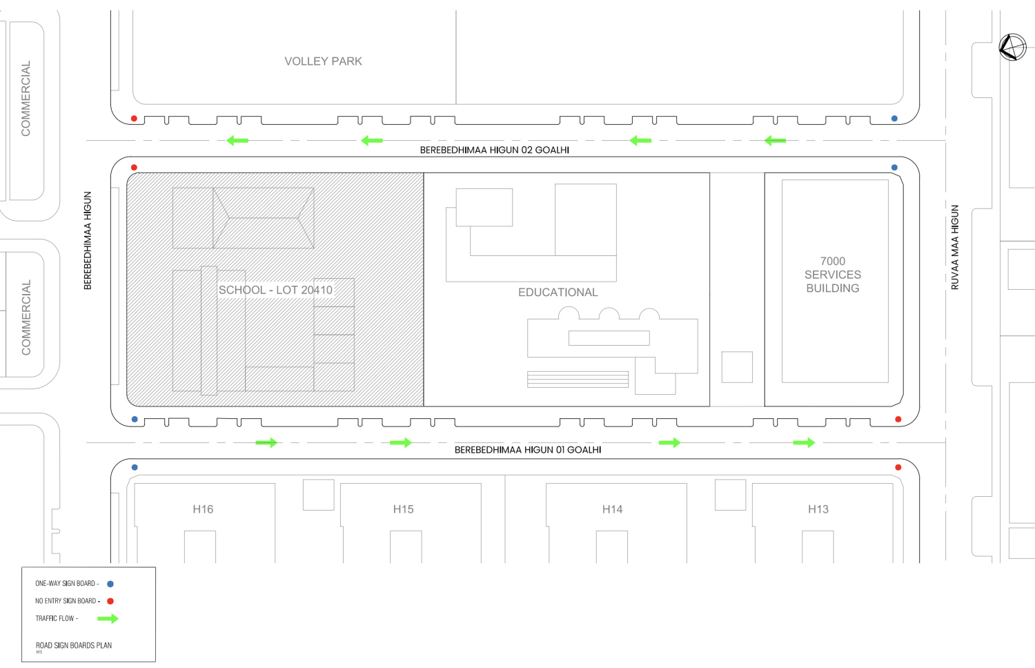
ހުޅުމާލޭ 2 ގައި ހިޔާ ފްލެޓުގެ 15 އަދި 16 ވަނަ ޓަވަރު ކައިރީގައި އިމާރާތް ކޮށްފައިވާ ޝަހީދު އަލީ ސްކޫލް ވަށައިގެން އޮންނަ (ބެރެބެދިމާ ހިނގުން ގޯޅި 1 އަދި 2) އެއްކޮޅަށް ދުއްވޭ މަގަކަށް ބަދަލުކޮށްފައިވާ ކަމަށް އެޗްޑީސީން ބުންޏެވެ.

އެޗްޑީސީން ބުނި ގޮތުގައި، އެ ބަދަލު ގެނައީ، ޝަހީދު އަލީ ސްކޫލުގެ މަސައްކަތް ނިމި، ދިރާސީ އާ އަހަރާ ދިމާކޮށް ސްކޫލް ހުޅުވުމުގެ ކުރިން، އެ ސްކޫލަށް ދެވޭ ގޮތަށް އޮންނަ ދެ ގޯޅި (ބެރެބެދިމާ ހިނގުން ގޯޅި 1 އަދި 2)ގެ ޓްރެފިކް ބާރުބޮޑުވުން ހައްލުކުރުމަށެވެ.

އެއީ ސްކޫލު ކުދިން ހިނގާވެބިނގާވެ އުޅުމަށް ރައްކާތެރި ސަރަހައްދަކަށް ހެދުމަކީ ވެސް އެ ބަދަލު ގެނައި ސަބަބެއް ކަމަށް އެޗްޑީސީން ބުންޏެވެ.

އެޗްޑީސީން އާންމުކުރި ޗާޓުގައިވާ ގޮތުން ބެރެބެދިމާ ހިނގުން ގޯޅި 1 އިން ދުއްވޭނީ އެ މަގުގެ ދެކުނުން އުތުރަށެވެ. އަދި ބެރެބެދިމާ ހިނގުން ގޯޅި 2 އިން ދުއްވޭނީ އެ މަގުގެ އުތުރުން ދެކުނަށެވެ.

ދިރާސީ އާ އަހަރުގެ ކިޔެވުން ފެށީ އަންނަ މަހު 27 ގަ އެވެ.

ރަޝީދު ކާޕެންޓްރީ އެންޑް ކޮންސްޓްރަކްޝަން (އާރުސީސީ) އާ ހަވާލުކޮށްގެން ޑިސެމްބަރު 2023 ގައި ބިން އަޅައި، އިމާރާތްކުރަމުން އަންނަ ޝަހީދު އަލީ ސްކޫލުގެ މަސައްކަތުގެ ބޮޑުބައި މިހާރު ވަނީ ނިމިފަ އެވެ.

ގްރޭޑް 1-10 އާ ހަމައަށް ކިޔަވައިދޭން ނިންމާފައިވާ އެ ސްކޫލަކީ އެއްދަންފަޅިއަށް 1،500 ކުދިންނަށް ކިޔެވޭނެ ޖާގަ ގޮތް ސްކޫލެކެވެ. އަދި އެ ސްކޫލުގައި 32 ކުދިންގެ ޖާގައިގެ 54 ކްލާސްރޫމުގެ އިތުރުން 20 މީހުންގެ ޖާގައިގެ ތިން ލިފްޓް ހަރުކޮށް، ހުރިހާ ކްލާސްރޫމެއް ހުންނާނީ އޭސީ ކޮށްފައި ކަމަށް ވެސް އެޑިއުކޭޝަން މިނިސްޓްރީން ބުނެފައިވެ އެވެ. އަދި މުޅި ސްކޫލަށް ބޭނުންވާ ކަރަންޓު ވެސް އުފައްދަނީ ސޯލާ ހަކަތައިންނެވެ.

އެ ސްކޫލު ނިމޭއިރު މާލެ ސަރަހައްދުގައި ހުންނާނެ އެންމެ ބޮޑު ސްކޫލް ލައިބްރަރީގެ އިތުރުން އޮޑިޓޯރިއަމް އާއި ހޯލަކާއި ސްޓާފް ކެންޓީން ވެސް އެތަނުގައި ހުންނާނެ އެވެ.